Hausdetails
319.580
152,80
Flächenberechnung laut DIN 277
22°
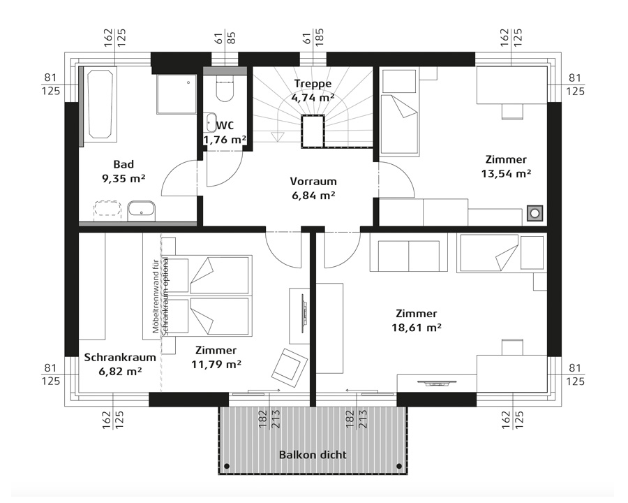
Dieses Einfamilienhaus mit ca. 153 m2 Wohnfläche bietet viel Raum für Familie und Alltag. Der offene Wohn-Essbereich mit Terrassenzugang ist das Herzstück im Erdgeschoss. Küche, Arbeitszimmer und Gäste-WC ergänzen das Raumkonzept. Oben sorgen drei Schlafzimmer, ein Schrankraum, Bad und separates WC für komfortables Wohnen. Der Balkon am Elternzimmer schafft zusätzlichen Rückzugsraum.
Grundrisse
Galerie
Ausbaustufen
Außen komplett und innen fertig zum Ausbau.
Speziell bei HARTL HAUS: Passivhaustaugliche Holz-Alufenster und Terrassentüren, Hauseingangstür mit Mehrfachverriegelung und Massivholztreppe aus eigener Produktion, im Werk witterungsgeschützt eingebaut – bereits ab der HARTL HAUS Leistungsstufe. Alle Wände und Decken mit massiven Gipsfaserplatten fertig beplankt.
Inbegriffen:
-
Unsere HARTL HAUS Qualitäts-, Leistungs- und Sicherheitsvorteile
-
Umfangreiche Hausausstattung in unserem Ausstattungs- und Interieurcenter
-
Fachberatung, Planung und Fachbauleitung
-
Transport und Hausmontage inklusive Schutzgerüst
-
Wände & Decken fertig verkleidet mit besonders tragfähigen, ökologischen Gipsfaserplatten
-
Dachstuhl & Dacheindeckung inkl. Spenglerarbeiten mit 3,20 kN Standard-Schneelast & Sturmsicherung
-
Hochwertige Massivholztreppe von den HARTL Tischlern (bei mehrgeschossigen Häusern)
-
Passivhaustaugliche, dreifach verglaste Holz-Alu Fenster und Terrassentüren mit verdeckten Beschlägen und Sicherheitsverglasung von den HARTL Tischlern
-
Hauseingangstür mit Mehrfachverriegelung und Sicherheitsschloss von den HARTL Tischlern
-
Elektroleerverrohrung in allen Wänden
Inklusive Installationen und Haustechnik.
Zusätzlich zum kompletten Leistungsumfang der HARTL HAUS Leistungsstufe: Schalter und Steckdosen verkabelt und montiert, Luft-Wasser-Wärmepumpe mit Fußbodenheizung verlegt und Sanitärrohinstallation angeschlossen.
Zusätzlich zu allen Vorteilen der Leistungsstufe:
-
Elektroinstallation komplett montiert (laut Leistungsbeschreibung)
-
Heizung: Luft-Wasser-Wärmepumpe mit Warmwasserpeicher und Fußbodenheizung
-
Anbindung der Sanitärrohinstallation an das Heizsystem
-
Nasszementestrich inklusive Trittschall- und Wärmedämmung
Schlüssel entgegennehmen und einziehen.
Bei HARTL HAUS mit echtholzfurnierten Innentüren von den HARTL Tischlern, ausgewählten Markenprodukten im Sanitärbereich von ausgewählten Professionisten montiert und hochwertigen Bodenbelägen inklusive Sockelleisten fertig verlegt.
Zusätzlich zu allen Vorteilen der Leistungsstufe und Belagsfertig:
-
Wand- und Bodenfliesen in 1A-Qualität vom Professionisten verlegt inkl. Sockelfliesen und Untergrundabdichtung im Boden- und Spritzwasserbereich
-
Sanitärgegenstände sowie Sanitärkomplettierung mit hochwertigen Armaturen fertig montiert
-
Fertigstellung der Innenwände: Tapezierung oder Feinspachtelung mit Anstrich
-
Hochwertige Fußbodenbeläge inklusive Trittschalldämmung und Sockelleisten fertig verlegt
-
Echtholzfurnierte Innentüren von den HARTL Tischlern gefertigt und fachgerecht eingebaut
-
Dachbodenzugang mit Oberdeckel (bei Steildächern) fertig montiert und abgedichtet
All-Inclusive mit Bestpreis-Garantie
So geht sorglos bauen. In der fix & fertig-Variante ist Ihr HARTL HAUS inklusive Bodenplatte für Sie einzugsbereit.
Zusätzlich zu allen Vorteilen der Schlüsselfertig:
-
Bodenplatte: Genießen Sie den Rundum-Service. Wir kümmern uns um die Planung und Abwicklung in Abstimmung mit unseren Partnerfirmen.
-
Wartungsvertrag: Bei Abschluss eines Kaufvertrages erhalten Sie jetzt einen kostenlosen Wartungsvertrag für 2 Jahre für Ihr Haus.
-
Holz-Alu Fenster
-
Elektrische Rollläden
Preisbasis September 2025. Preise gültig für Deutschland. Preis einschließlich 19% MwSt. Irrtum, Satzfehler sowie technische Änderungen bedingt durch Fortschritt vorbehalten. Wir schreiben Individualität groß. Jedes Haus wird auf die Anforderungen, Wünsche und Grundstücksmöglichkeiten unserer Kunden angepasst. Ihr Fachberater in Ihrer Nähe erstellt Ihnen ein persönliches Angebot, das auf Ihre Bedürfnisse zugeschnitten ist. Die hier gezeigten Preise dienen als Ausgangsbasis für Ihre individuelle Angebotslegung.
Fertighaus-katalog Anfordern
Fordern Sie Ihre kostenfreien Unterlagen an und lassen Sie sich inspirieren!
-
Komplett Kostenlos
-
Ideal als Inspirationsquelle
-
Alle verfügbaren Haustypen mit Grundrissen & Preisen

