Hausdetails
282.360
155,15
Flächenberechnung laut DIN 277
38°
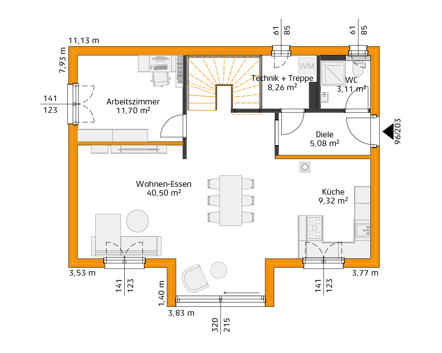
Ein modernes Zuhause für die ganze Familie mit großzügigem Wohn-Essbereich, offenem Küchenkonzept und praktischem Arbeitszimmer im Erdgeschoss. Oben bieten drei Schlafzimmer, Schrankraum sowie Bad und WC viel Platz zum Wohlfühlen und Zurückziehen. Die Erker-Variante des 146 S bringt mehr Raum, Licht und architektonische Wirkung.
Grundrisse
Galerie
DREI ERKER VARIANTEN– EIN PLUS AN WOHNQUALITÄT
Die Trend-Häuser 129 und 146 lassen sich mit unterschiedlichen Erkervarianten individuell gestalten. Ob als Erker im Erdgeschoss, als Erweiterung über zwei Etagen oder kombiniert mit einem Balkon im Dachgeschoss – jede Variante bringt mehr Raum, Licht und architektonische Wirkung. Die Erweiterung schafft zusätzlichen Platz und eröffnet neue Wohnideen: ein Essplatz mit Ausblick, eine gemütliche Leseecke oder andere individuelle Gestaltungsmöglichkeiten.
Großzügige Fensterflächen lassen viel Tageslicht herein und sorgen für eine helle, freundliche Atmosphäre. Im Dachgeschoss verwandelt sich der Erker in einen einladenden Balkon, der zusätzlichen Freiraum schenkt. Neben den praktischen Vorteilen setzen Erker und Balkon auch architektonische Akzente und verleihen der Fassade mehr Struktur und Charakter.
L = Leistungsstufe
B = Belagsfertig
S = Schlüsselfertig
F&F = Fix & Fertig
Ausbaustufen
Außen komplett und innen fertig zum Ausbau.
Speziell bei HARTL HAUS: Passivhaustaugliche Holz-Alufenster und Terrassentüren, Hauseingangstür mit Mehrfachverriegelung und Massivholztreppe aus eigener Produktion, im Werk witterungsgeschützt eingebaut – bereits ab der HARTL HAUS Leistungsstufe. Alle Wände und Decken mit massiven Gipsfaserplatten fertig beplankt.
Inbegriffen:
-
Unsere HARTL HAUS Qualitäts-, Leistungs- und Sicherheitsvorteile
-
Umfangreiche Hausausstattung in unserem Ausstattungs- und Interieurcenter
-
Fachberatung, Planung und Fachbauleitung
-
Transport und Hausmontage inklusive Schutzgerüst
-
Wände & Decken fertig verkleidet mit besonders tragfähigen, ökologischen Gipsfaserplatten
-
Dachstuhl & Dacheindeckung inkl. Spenglerarbeiten mit 3,20 kN Standard-Schneelast & Sturmsicherung
-
Hochwertige Massivholztreppe von den HARTL Tischlern (bei mehrgeschossigen Häusern)
-
Passivhaustaugliche, dreifach verglaste Holz-Alu Fenster und Terrassentüren mit verdeckten Beschlägen und Sicherheitsverglasung von den HARTL Tischlern
-
Hauseingangstür mit Mehrfachverriegelung und Sicherheitsschloss von den HARTL Tischlern
-
Elektroleerverrohrung in allen Wänden
Inklusive Installationen und Haustechnik.
Zusätzlich zum kompletten Leistungsumfang der HARTL HAUS Leistungsstufe: Schalter und Steckdosen verkabelt und montiert, Luft-Wasser-Wärmepumpe mit Fußbodenheizung verlegt und Sanitärrohinstallation angeschlossen.
Zusätzlich zu allen Vorteilen der Leistungsstufe:
-
Elektroinstallation komplett montiert (laut Leistungsbeschreibung)
-
Heizung: Luft-Wasser-Wärmepumpe mit Warmwasserpeicher und Fußbodenheizung
-
Anbindung der Sanitärrohinstallation an das Heizsystem
-
Nasszementestrich inklusive Trittschall- und Wärmedämmung
Schlüssel entgegennehmen und einziehen.
Bei HARTL HAUS mit echtholzfurnierten Innentüren von den HARTL Tischlern, ausgewählten Markenprodukten im Sanitärbereich von ausgewählten Professionisten montiert und hochwertigen Bodenbelägen inklusive Sockelleisten fertig verlegt.
Zusätzlich zu allen Vorteilen der Leistungsstufe und Belagsfertig:
-
Wand- und Bodenfliesen in 1A-Qualität vom Professionisten verlegt inkl. Sockelfliesen und Untergrundabdichtung im Boden- und Spritzwasserbereich
-
Sanitärgegenstände sowie Sanitärkomplettierung mit hochwertigen Armaturen fertig montiert
-
Fertigstellung der Innenwände: Tapezierung oder Feinspachtelung mit Anstrich
-
Hochwertige Fußbodenbeläge inklusive Trittschalldämmung und Sockelleisten fertig verlegt
-
Echtholzfurnierte Innentüren von den HARTL Tischlern gefertigt und fachgerecht eingebaut
-
Dachbodenzugang mit Oberdeckel (bei Steildächern) fertig montiert und abgedichtet
Preisbasis September 2025. Preise gültig für Deutschland. Preis einschließlich 19% MwSt. Irrtum, Satzfehler sowie technische Änderungen bedingt durch Fortschritt vorbehalten. Wir schreiben Individualität groß. Jedes Haus wird auf die Anforderungen, Wünsche und Grundstücksmöglichkeiten unserer Kunden angepasst. Ihr Fachberater in Ihrer Nähe erstellt Ihnen ein persönliches Angebot, das auf Ihre Bedürfnisse zugeschnitten ist. Die hier gezeigten Preise dienen als Ausgangsbasis für Ihre individuelle Angebotslegung.
Fertighaus-katalog Anfordern
Fordern Sie Ihre kostenfreien Unterlagen an und lassen Sie sich inspirieren!
-
Komplett Kostenlos
-
Ideal als Inspirationsquelle
-
Alle verfügbaren Haustypen mit Grundrissen & Preisen

